1棟アパート2025年11月完成★新築アパート★「溝の口」駅徒歩7分★2駅3路線利用可★
- 販売価格
- 1億6200万円
- 表面利回り
- 5.26%
- 所在地
- 神奈川県川崎市高津区下作延1丁目
- 沿線交通
- 東急田園都市線・東急大井町線/溝の口 徒歩7分
JR南武線/武蔵溝ノ口 徒歩8分
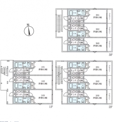
【2025年11月下旬完成予定】新築一棟アパート(1K×9戸)
「溝の口」駅徒歩7分|利便性×将来性の好立地
■ 交通の利便性
・東急田園都市線・大井町線「溝の口」駅 徒歩7分
・JR南武線「武蔵溝ノ口」駅 徒歩8分
→ 2駅3路線が利用可能で、都心アクセスや周辺移動もスムーズ。
通勤・通学に便利な立地で、単身社会人や学生など幅広い需要が見込めます。
■ 周辺環境
・駅前には「マルイ」「ノクティ」など大型商業施設が集積
・物件周辺にも「オーケー溝の口」、コンビニ、飲食店などが充実
→ 日々の生活に必要な施設が徒歩圏内に揃い、生活利便性の高さも魅力です。
■ 投資物件としての魅力
・2025年11月下旬完成予定の新築アパート(1K×9戸)
・新築ならではの減価償却メリットが活用可能
・人気駅徒歩圏&再開発が進むエリアで、将来的な資産価値の向上にも期待
→ 安定した賃貸需要と長期保有に適した好条件が揃っています。
【設備・仕様】
・住宅性能評価における劣化対策等級3級取得済み
・バス・トイレ別、独立洗面台付きで快適な住環境
・宅配BOX完備で非対面ニーズにも対応
・TVモニター付きインターホンでセキュリティ面も安心
-
| 物件名 | 2025年11月完成★新築アパート★「溝の口」駅徒歩7分★2駅3路線利用可★ | ||||
|---|---|---|---|---|---|
| 所在地 | 神奈川県川崎市高津区下作延1丁目 | ||||
| 沿線交通 | 東急田園都市線・東急大井町線/溝の口 徒歩7分 JR南武線/武蔵溝ノ口 徒歩8分 |
||||
| 販売価格 | 表面利回り | 5.26% | 想定年間収入 | 8,532,000円 (711,000円/月) |
|
| 建物構造 | 木造 | 階数 | 地上3階 |
築年月 | 2025年11月下旬完成予定 |
| 建物面積 | 174.09㎡ | 間取り | 1K×9戸 | 総戸数 | 9戸 |
| 駐車場 | なし | 専有面積(最小面積) | 19.34㎡ | 専有面積(最大面積) | 19.34㎡ |
| 土地面積 | 143.15㎡ 実測 | 土地権利 | 所有権 | 私道負担面積 | |
| 地目 | 宅地 | 都市計画区域 | 市街化区域 | 用途地域 | 準住居地域 |
| 接道状況 | 東側:幅員4.0m(私道)/42条2項道路 |
建ペイ率 | 60% | 容積率 | 200% |
| 建築確認番号 | 第24UDI1K建02135号 | 現況 | 建築中 | 取引形態 | 仲介 |
| 注意事項 | ・2025年11月 竣工予定 ・用途地域が準住居地域と第一種住居地域に跨っています。 ・上記土地面積以外に、別途セットバック部分(面積 79.43㎡・持分 2分の1)がございます。 |
||||















